446 Corina Avenue Princeton, British Columbia V0X 1W0
$549,000
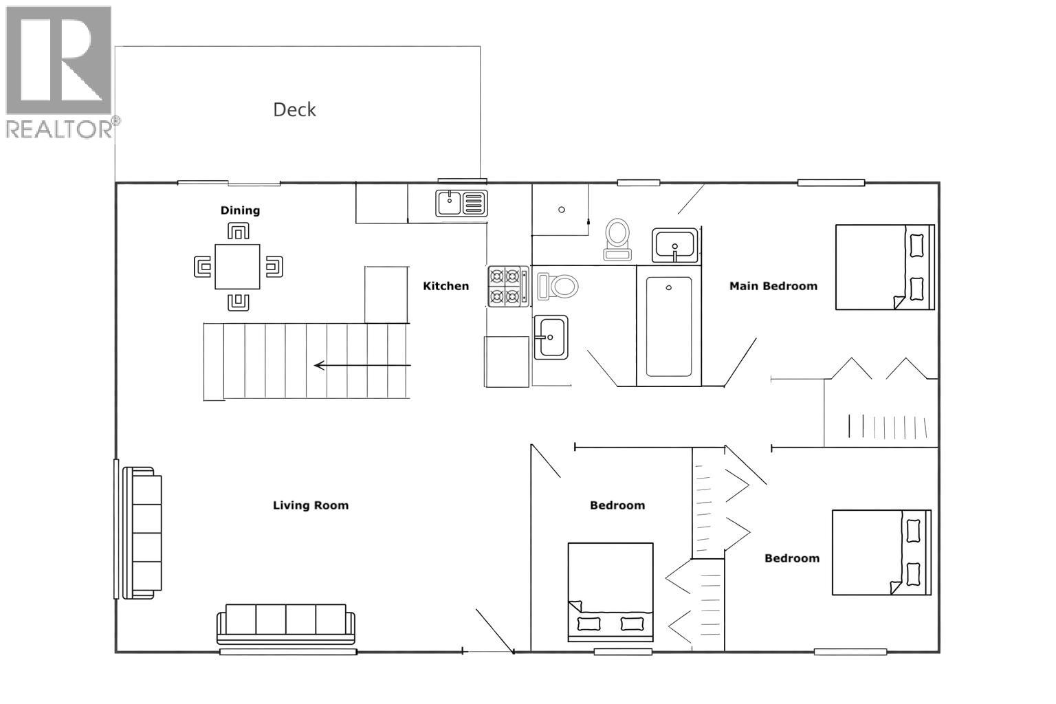
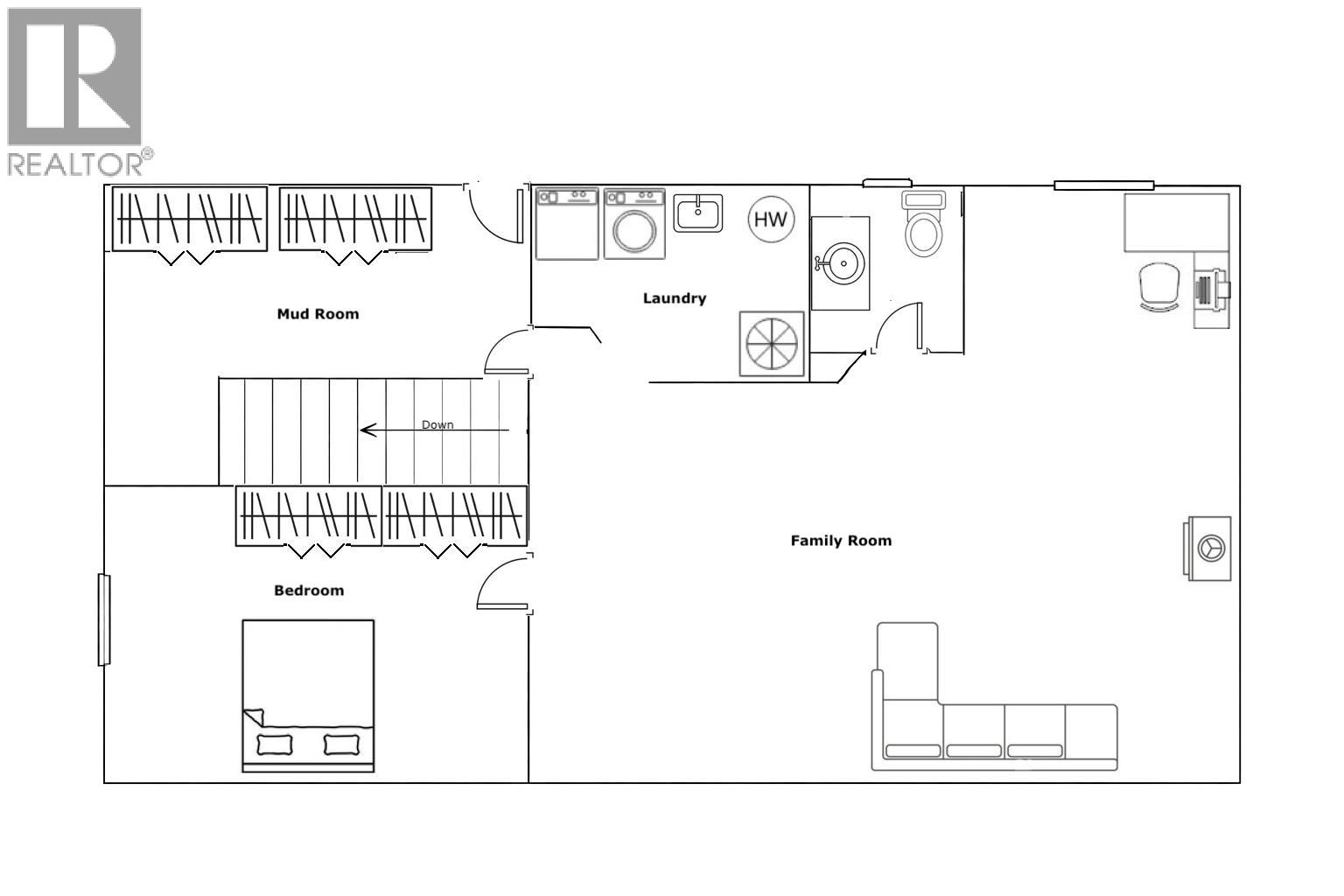
Spacious 2 level home with walkout basement overlooking the Tulameen River. Situated on a spacious lot with ample room for RV parking and additional vehicles, this property offers both a family friendly home with outdoor water lifestyle appeal. Numerous updates have been completed over the years, including windows, gas furnace, appliances, flooring, kitchen, and bathrooms, providing peace of mind. Featuring a 3 bedroom layout upstairs, with the primary bedroom offering modern amenities including a walk-in closet and 3-piece ensuite. Step outside to the large rear sun deck and enjoy beautiful river views and sounds in your own backyard. The full walk-out basement offers plenty of additional space and potential for the growing family. Conveniently located near elementary school. An amazing home that's perfect for families. (id:62288)
Property Details
| MLS® Number | 10376508 |
| Property Type | Single Family |
| Neigbourhood | Princeton |
| Amenities Near By | Schools |
| View Type | River View |
Building
| Bathroom Total | 3 |
| Bedrooms Total | 4 |
| Appliances | Refrigerator, Dishwasher, Range - Electric |
| Architectural Style | Ranch |
| Basement Type | Full |
| Constructed Date | 1980 |
| Construction Style Attachment | Detached |
| Cooling Type | Central Air Conditioning |
| Exterior Finish | Wood Siding |
| Fireplace Fuel | Wood |
| Fireplace Present | Yes |
| Fireplace Type | Conventional |
| Half Bath Total | 1 |
| Heating Type | Forced Air, See Remarks |
| Roof Material | Asphalt Shingle |
| Roof Style | Unknown |
| Stories Total | 2 |
| Size Interior | 2,144 Ft2 |
| Type | House |
| Utility Water | Municipal Water |
Parking
| R V |
Land
| Acreage | No |
| Land Amenities | Schools |
| Sewer | Municipal Sewage System |
| Size Irregular | 0.19 |
| Size Total | 0.19 Ac|under 1 Acre |
| Size Total Text | 0.19 Ac|under 1 Acre |
Rooms
| Level | Type | Length | Width | Dimensions |
|---|---|---|---|---|
| Basement | Bedroom | 12' x 10' | ||
| Basement | Family Room | 25' x 16' | ||
| Basement | 2pc Bathroom | Measurements not available | ||
| Main Level | 3pc Ensuite Bath | Measurements not available | ||
| Main Level | 4pc Bathroom | Measurements not available | ||
| Main Level | Dining Room | 10' x 10' | ||
| Main Level | Bedroom | 10' x 10' | ||
| Main Level | Bedroom | 10' x 9' | ||
| Main Level | Primary Bedroom | 13' x 10' | ||
| Main Level | Living Room | 16' x 14' | ||
| Main Level | Kitchen | 13' x 10' |
https://www.realtor.ca/real-estate/29399103/446-corina-avenue-princeton-princeton
Contact Us
Contact us for more information
Lee Mowry
www.princetonbc.com/
www.facebook.com/C21HorizonWest
ca.linkedin.com/pub/lee-mowry/43/a78/979/
224 Bridge St, Po Box 880
Princeton, British Columbia V0X 1W0
(250) 295-6977
(888) 493-6163












































