2635 5th Ave Port Alberni, British Columbia V9Y 2G2
$524,000
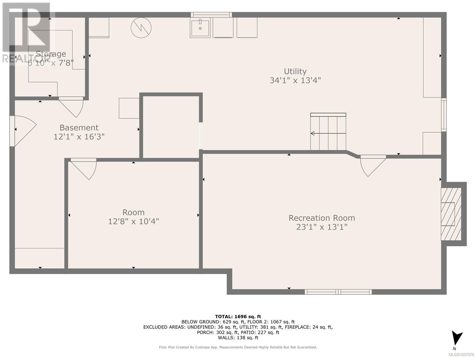
CHARMING 3 BEDROOM HOME WITH DETACHED SHOP! The main floor of this home features two bedrooms, one bathroom, spacious kitchen, nice size diningroom and a very large livingroom with a propane fireplace and ample amount of natural light. The basement includes one more bedroom a 23'x13' recreation room and a massive 34'x13' utiliy area. Step outside to discover a fantastic detached workshop, ideal for the hobbyist, DIY enthusiasts, or anyone in need of extra storage space. Located in a great neighborhood, this home is just minutes away from parks, shopping, and local dining options. Dont' miss this chance in making this charming home your own! Schedule a showing today and discover all the posibilities this home has to offer. (id:62288)
Property Details
| MLS® Number | 1007976 |
| Property Type | Single Family |
| Neigbourhood | Port Alberni |
| Parking Space Total | 3 |
Building
| Bathroom Total | 1 |
| Bedrooms Total | 3 |
| Constructed Date | 1947 |
| Cooling Type | Air Conditioned |
| Fireplace Present | Yes |
| Fireplace Total | 1 |
| Heating Fuel | Oil, Propane |
| Heating Type | Forced Air, Heat Pump |
| Size Interior | 1,696 Ft2 |
| Type | House |
Land
| Access Type | Road Access |
| Acreage | No |
| Size Irregular | 5632 |
| Size Total | 5632 Sqft |
| Size Total Text | 5632 Sqft |
| Zoning Type | Residential |
Rooms
| Level | Type | Length | Width | Dimensions |
|---|---|---|---|---|
| Lower Level | Storage | 7'8 x 6'10 | ||
| Lower Level | Utility Room | 34'1 x 13'4 | ||
| Lower Level | Recreation Room | 23'1 x 13'1 | ||
| Lower Level | Bedroom | 12'8 x 10'4 | ||
| Main Level | Bathroom | 9'3 x 6'9 | ||
| Main Level | Kitchen | 15'5 x 9'2 | ||
| Main Level | Living Room | 20'3 x 13'1 | ||
| Main Level | Dining Room | 13'2 x 8'11 | ||
| Main Level | Bedroom | 9'3 x 9'2 | ||
| Main Level | Primary Bedroom | 13'1 x 11'6 |
https://www.realtor.ca/real-estate/28639984/2635-5th-ave-port-alberni-port-alberni
Contact Us
Contact us for more information
Bev Mullen
A - 4650 Margaret St
Port Alberni, British Columbia V9Y 6H2
(250) 248-8801
www.pembertonholmes.com/





































