13 3085 Sherman Rd Duncan, British Columbia V9L 2C1
$635,900Maintenance,
$153 Monthly
Maintenance,
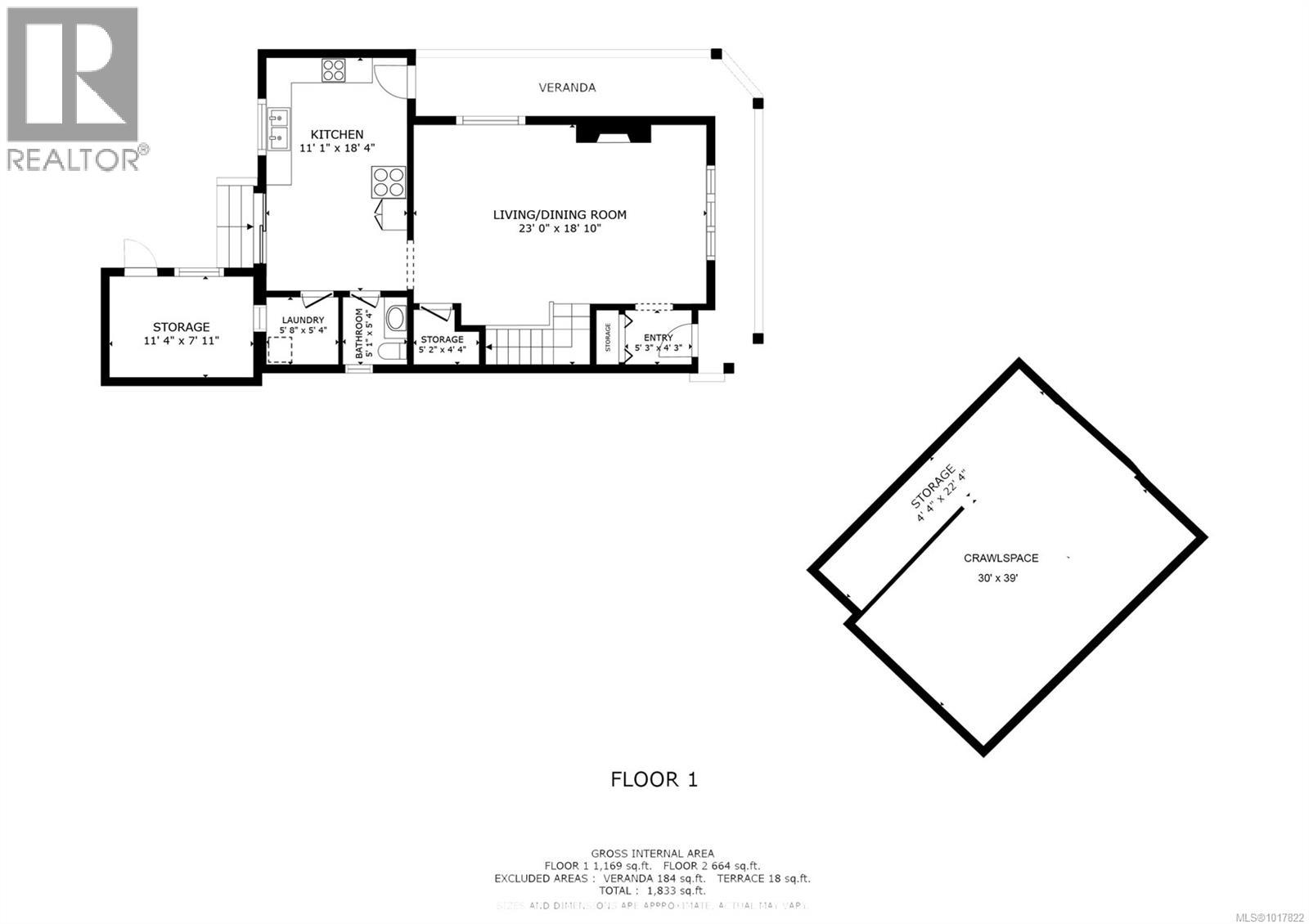
$153 MonthlyWelcome to this beautiful home in sought-after Brookside Gates! This 3 bedroom, 2 bathroom corner home features a wrap-around porch for enjoying your morning coffee, beautiful hardwood floors, a large great room and dining room and lots of storage. As you enter the home you notice the open-concept layout, 9 foot ceilings, and warm natural gas fireplace perfect for cozying up with a book. The dining room is great for entertaining family and friends and the kitchen is bright featuring stainless steel appliances with a slider out to the backyard. Upstairs is a large primary bedroom with a walk-in closet and ensuite bathroom with a soaker tub. The other two bedrooms have lovely views out to the backyard and lush forested area. The sellers lovingly maintained this home and have done various updates including a furnace update in 2025. The home has a crawlspace with ample storage, and a storage shed in the backyard. Being the corner unit- this home only has a neighbour on one side creating extra privacy and space. This gated bare land strata community is well managed and is incredibly safe for you and your loved ones. There is room to park vehicles at the unit and also guest parking in the community for visitors. This home is centrally located with close proximity to recreation, grocery stores, restaurants and minutes to Downtown Duncan. Come and see this special home today! (id:62288)
Property Details
| MLS® Number | 1017822 |
| Property Type | Single Family |
| Neigbourhood | West Duncan |
| Community Features | Pets Allowed, Family Oriented |
| Features | Central Location, Park Setting, Corner Site, Other, Gated Community |
| Parking Space Total | 3 |
| Structure | Shed |
Building
| Bathroom Total | 2 |
| Bedrooms Total | 3 |
| Architectural Style | Other |
| Constructed Date | 2005 |
| Cooling Type | None |
| Fireplace Present | Yes |
| Fireplace Total | 1 |
| Heating Fuel | Electric, Natural Gas |
| Heating Type | Forced Air |
| Size Interior | 1,833 Ft2 |
| Total Finished Area | 1833 Sqft |
| Type | House |
Land
| Access Type | Road Access |
| Acreage | No |
| Size Irregular | 3348 |
| Size Total | 3348 Sqft |
| Size Total Text | 3348 Sqft |
| Zoning Description | R3 |
| Zoning Type | Residential |
Rooms
| Level | Type | Length | Width | Dimensions |
|---|---|---|---|---|
| Second Level | Bedroom | 10'9 x 9'8 | ||
| Second Level | Bedroom | 10'9 x 10'9 | ||
| Second Level | Bathroom | 9'10 x 10'3 | ||
| Second Level | Primary Bedroom | 11'8 x 13'7 | ||
| Main Level | Storage | 5'2 x 4'4 | ||
| Main Level | Bathroom | 5'1 x 5'4 | ||
| Main Level | Entrance | 5'3 x 4'3 | ||
| Main Level | Laundry Room | 5'8 x 5'4 | ||
| Main Level | Kitchen | 11'1 x 18'4 | ||
| Main Level | Great Room | 23'0 x 18'10 |
https://www.realtor.ca/real-estate/29006300/13-3085-sherman-rd-duncan-west-duncan
Contact Us
Contact us for more information
Jenna Le Blanc
472 Trans Canada Highway
Duncan, British Columbia V9L 3R6
(250) 748-7200
(800) 976-5566
(250) 748-2711
www.remax-duncan.bc.ca/
















































