101 9175 Mary Street, Chilliwack Proper West Chilliwack, British Columbia V2P 4H7
$239,900
New price & vacant for quick possession, this charming & updated 2-bedroom, 1-bath condo is nestled in a well-kept 55+ building in the heart of downtown Chilliwack. Just steps from shops, restaurants, hospital, & key amenities, it offers both convenience & serenity in a peaceful, pet-free community. Thoughtful updates include a renovated kitchen & bathroom, new flooring, & a mini-split AC & heat system for year-round comfort. Located close to the elevator & laundry, day-to-day living is simple & accessible. Step outside to a large, beautiful deck with east & south-facing exposure"-perfect for enjoying sunny mornings & natural light all day long. With a proactive strata covering water, hot water, & heat, this is an great opportunity to enjoy low-maintenance living in a prime location! (id:62288)
Property Details
| MLS® Number | R3030106 |
| Property Type | Single Family |
| Storage Type | Storage |
| View Type | City View, Mountain View |
Building
| Bathroom Total | 1 |
| Bedrooms Total | 2 |
| Amenities | Shared Laundry |
| Appliances | Intercom, Refrigerator, Stove |
| Basement Type | None |
| Constructed Date | 1975 |
| Construction Style Attachment | Attached |
| Cooling Type | Central Air Conditioning |
| Fire Protection | Smoke Detectors |
| Heating Type | Baseboard Heaters, Hot Water |
| Stories Total | 4 |
| Size Interior | 897 Ft2 |
| Type | Apartment |
Parking
| Underground |
Land
| Acreage | No |
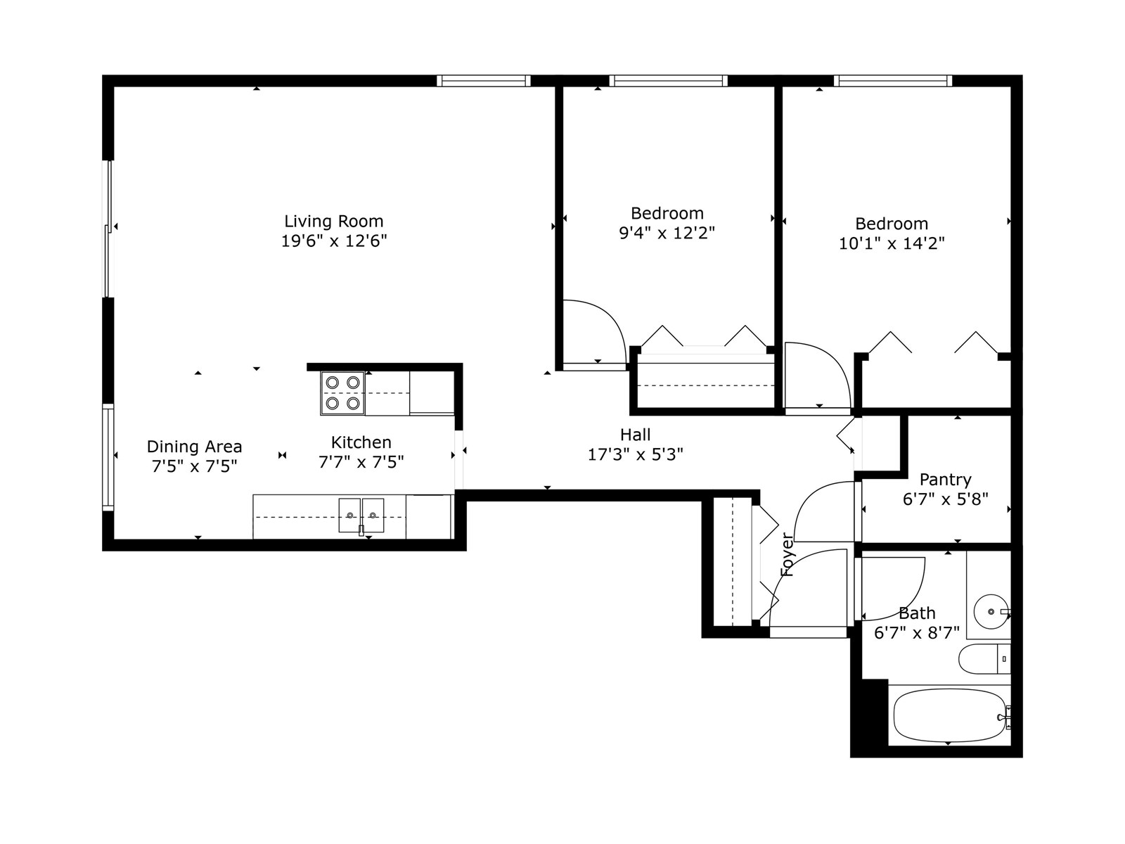
Rooms
| Level | Type | Length | Width | Dimensions |
|---|---|---|---|---|
| Main Level | Living Room | 19 ft ,5 in | 12 ft ,6 in | 19 ft ,5 in x 12 ft ,6 in |
| Main Level | Kitchen | 7 ft ,5 in | 7 ft ,5 in | 7 ft ,5 in x 7 ft ,5 in |
| Main Level | Dining Room | 7 ft ,4 in | 7 ft ,5 in | 7 ft ,4 in x 7 ft ,5 in |
| Main Level | Primary Bedroom | 10 ft ,3 in | 14 ft ,2 in | 10 ft ,3 in x 14 ft ,2 in |
| Main Level | Bedroom 2 | 9 ft ,3 in | 12 ft ,2 in | 9 ft ,3 in x 12 ft ,2 in |
| Main Level | Pantry | 6 ft ,5 in | 5 ft ,8 in | 6 ft ,5 in x 5 ft ,8 in |
https://www.realtor.ca/real-estate/28644129/101-9175-mary-street-chilliwack-proper-west-chilliwack
Contact Us
Contact us for more information
Jordan Nicol
jordannicol.com/
www.facebook.com/604Jordan
190 - 45428 Luckakuck Wy
Chilliwack, British Columbia V2R 3S9
(604) 846-7355
(604) 846-7356
www.creeksiderealtyltd.c21.ca/








































