1 46430 First Avenue, Chilliwack Proper East Chilliwack, British Columbia V2P 1W9
$690,000
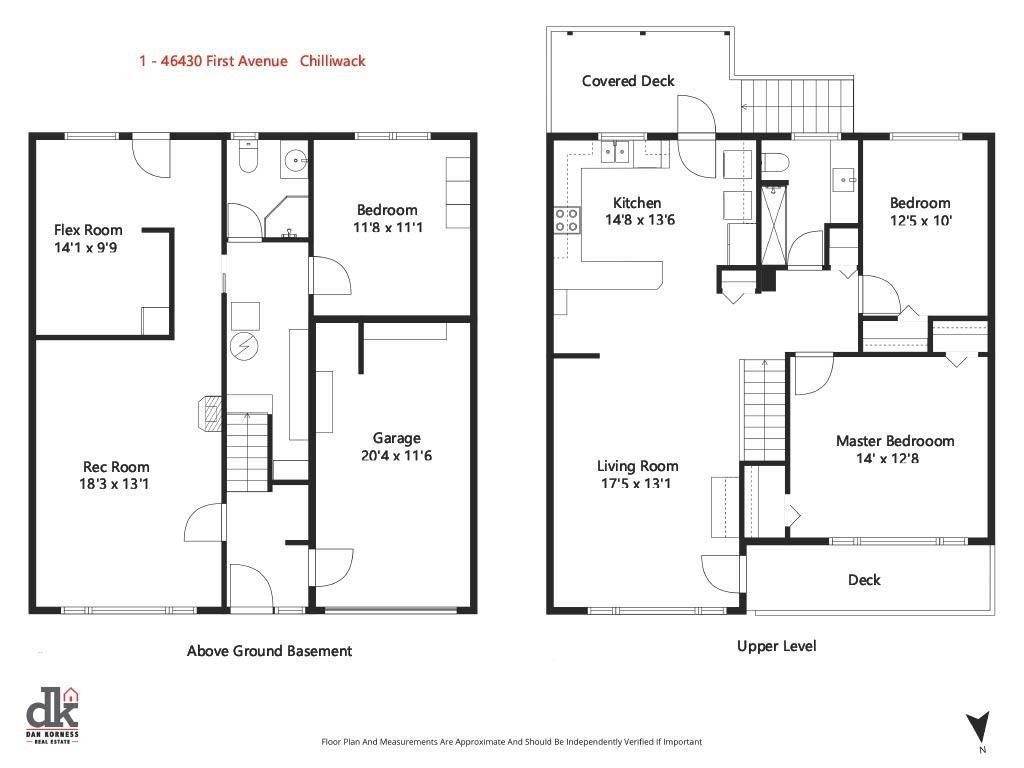
Welcome home to this spacious half duplex, set on a generous 7,864 sq. ft. lot (your side) with mature landscaping and lush gardens offering exceptional privacy. The bright and open upper level features a large living area, a bright white kitchen, and two decks "- including a newer covered rear deck with stairs leading to the backyard. You'll also find two generous sized bedrooms on this level. Downstairs offers a family-sized recreation room with a cozy gas fireplace, a versatile bonus room, a third bedroom, and access to: the aviary (for the bird lovers), a covered patio pre-wired for a hot tub, and expansive yard with greenhouse and storage shed. Recent updates include new flooring throughout and refreshed bathrooms with updated showers, vanities, and fixtures. (id:62288)
Property Details
| MLS® Number | R3059711 |
| Property Type | Single Family |
Building
| Bathroom Total | 2 |
| Bedrooms Total | 3 |
| Amenities | Laundry - In Suite |
| Appliances | Washer, Dryer, Refrigerator, Stove, Dishwasher |
| Architectural Style | Basement Entry |
| Basement Development | Finished |
| Basement Type | Full (finished) |
| Constructed Date | 1975 |
| Construction Style Attachment | Attached |
| Fireplace Present | Yes |
| Fireplace Total | 1 |
| Heating Fuel | Natural Gas |
| Heating Type | Forced Air |
| Stories Total | 2 |
| Size Interior | 1,927 Ft2 |
| Type | Duplex |
Parking
| Garage | 1 |
| Open |
Land
| Acreage | No |
| Size Depth | 197 Ft |
| Size Frontage | 40 Ft |
| Size Irregular | 7864 |
| Size Total | 7864 Sqft |
| Size Total Text | 7864 Sqft |
Rooms
| Level | Type | Length | Width | Dimensions |
|---|---|---|---|---|
| Lower Level | Recreational, Games Room | 18 ft ,2 in | 13 ft ,1 in | 18 ft ,2 in x 13 ft ,1 in |
| Lower Level | Bedroom 3 | 11 ft ,6 in | 11 ft ,1 in | 11 ft ,6 in x 11 ft ,1 in |
| Lower Level | Other | 14 ft ,3 in | 9 ft ,9 in | 14 ft ,3 in x 9 ft ,9 in |
| Lower Level | Foyer | 7 ft | 5 ft ,8 in | 7 ft x 5 ft ,8 in |
| Main Level | Living Room | 17 ft ,4 in | 13 ft ,1 in | 17 ft ,4 in x 13 ft ,1 in |
| Main Level | Kitchen | 14 ft ,6 in | 13 ft ,6 in | 14 ft ,6 in x 13 ft ,6 in |
| Main Level | Primary Bedroom | 14 ft | 12 ft ,5 in | 14 ft x 12 ft ,5 in |
| Main Level | Bedroom 2 | 12 ft ,4 in | 10 ft | 12 ft ,4 in x 10 ft |
https://www.realtor.ca/real-estate/29018521/1-46430-first-avenue-chilliwack-proper-east-chilliwack
Contact Us
Contact us for more information
Dan Korness
www.dankorness.ca/
www.facebook.com/dankornessrealty
www.instagram.com/dankornessrlprealty/?hl=en
118 - 15272 Croydon Drive
Surrey, British Columbia V3Z 0Z5
(604) 538-2125
www.royallepage.ca/northstar

























